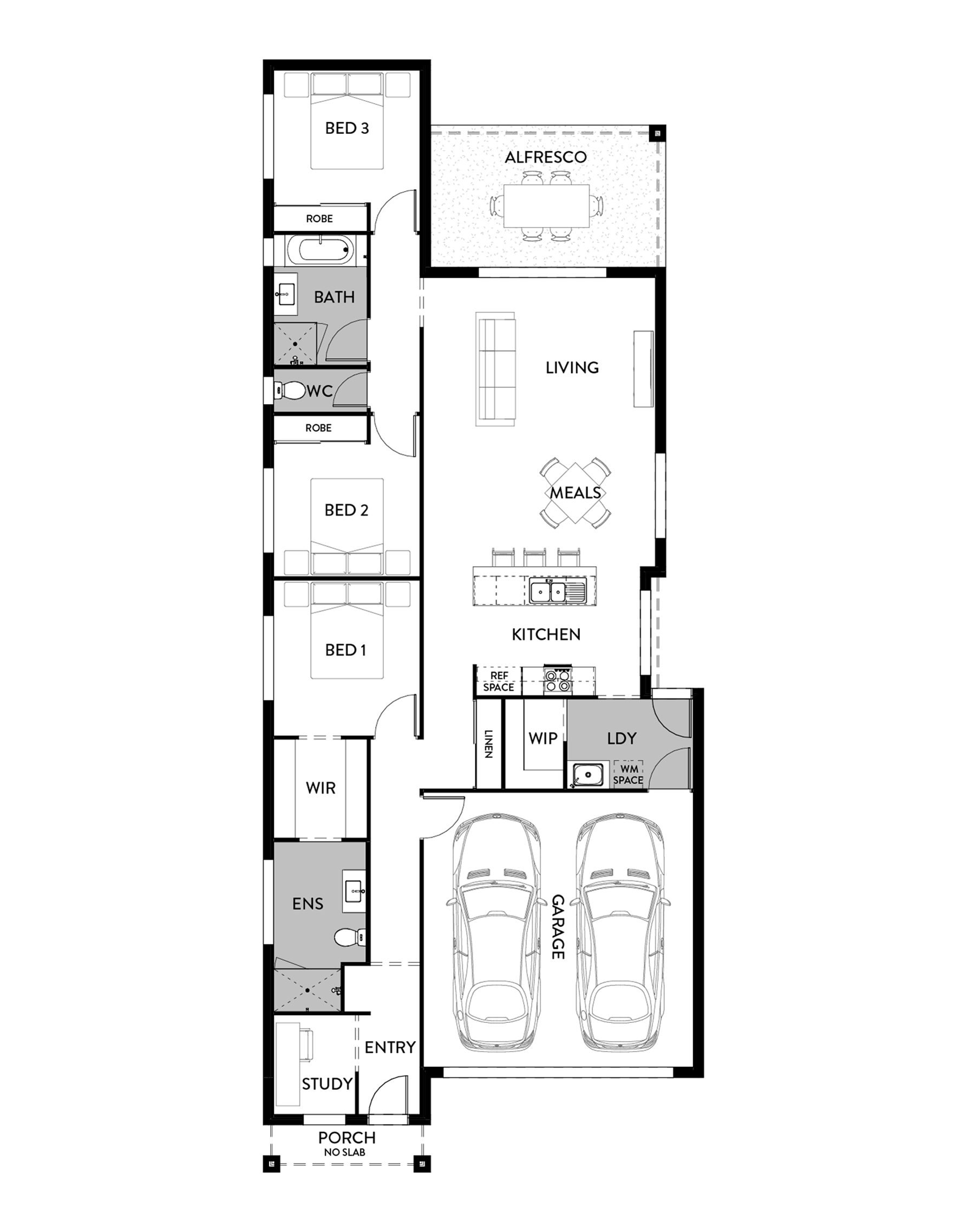
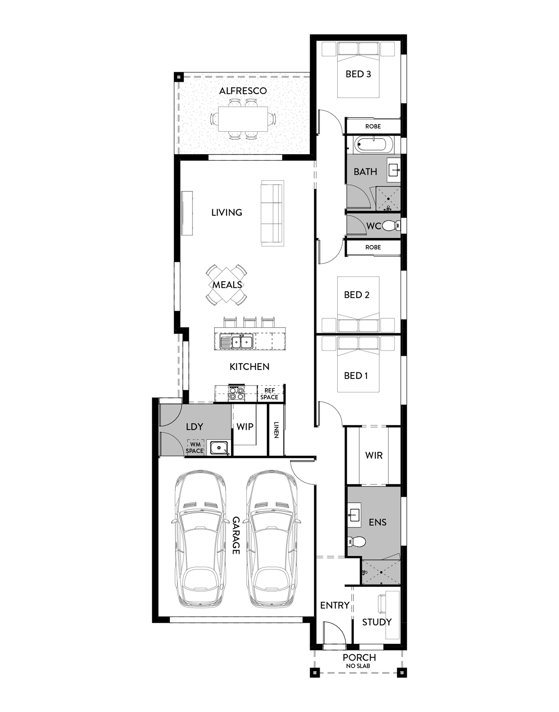
The Abbey 188 combines stylish living with everyday functionality, making it the perfect choice for modern families. Step inside and you’ll find a welcoming study at the entry, ideal for working from home or creating a quiet retreat. The heart of the home opens up into a welcoming kitchen, meals and living area, where a central island bench and walk-in pantry make cooking and entertaining a pleasure. Sliding doors connect this space to the alfresco, creating a seamless flow that embraces Queensland’s relaxed indoor-outdoor lifestyle. With three bedrooms, including a private master suite with walk-in robe and ensuite, there’s room for everyone to feel at home.
Smartly designed for narrow lots, the Abbey 188 also includes a double garage, dedicated laundry and clever storage to keep daily life running smoothly. As part of our Luma Range of single-storey homes, it delivers incredible value alongside designs like the Abbey 191 and Abbey 168. View the floor plan and façade selection below, and contact our team to learn more about this beautiful home design.
| House Dimensions | |
|---|---|
| Min Block Width | 10.5m* |
| Floor Area Sqm | 188.60m2 |
| Length | 23.48m |
| Width | 9.30m |
| Bedrooms | |
|---|---|
| Master Bedroom | 3.1m x 3.3m |
| Bedroom 2 | 3.1m x 2.8m |
| Bedroom 3 | 3.1m x 2.8m |
| Living Areas | |
|---|---|
| Meals | 4.9m x 2.6m |
| Living | 4.9m x 3.5m |
| Kitchen | 3.5m x 2.7m |
| Outdoor | |
|---|---|
| Alfresco | 4.9m x 3.0m |
| Garage | 5.7m x 5.8m |
Thank you for your enquiry, a consultant will contact you within three business days.
Processing
Processing
Provide your details to receive a copy of the brochure in your inbox.
Thank you, the brochure has downloaded and has been emailed to you. You can also download it here.
Please get in touch, if you'd like any help with you new home.
Processing
Fill out the form below and a sales consultant will contact you to confirm your appointment.
A sales consultant will contact you soon to schedule an appointment on your selected day.
Processing